욕실 드레인, 화장실 배수구 브랜드 2TEC 트렌치에 대해서...
타일 삽입형 배수구 2TEC 유가 봉수 트렌치

요즘엔 화장실, 욕실 배수구도 모던하고 세련되게 잘 나온다.
옛날처럼 하나같이 금속 라인타입이나
아님 십자문양이 있는?
어떻게 보면 투박하기도 하고 바닥디자인까지
헤칠 수 있기에..
나 배수구요~ 하는 디자인 말고
배수구인 듯 아닌 듯 감쪽같이 숨기는
그런 배수구를 많이들 찾는다!
그중에 하나가 2tec 브랜드 제품인데..
요 제품 드레인에 대해서 살짝 살펴보자면,
▒ 특징
· 투인원( 한 제품으로 2가지 마감)
· 신속한 배수(90도까지 개방되는 트랩)
· 우수한 내구성( sus304 및 황동으로 제작)
· 유지관리 (트랩분리로 청소관리 기능)
· 해충 및 악취차단 (위생적인 욕실 사용)
· 탄탄한 재질 (부드러운 마감과 텍스처)
타일삽입형

BRUSHED NICKEL(브러쉬드니켈)
메탈 무광커버로 마감이 매끄럽고
어느 욕실에서도 어울리는 고급스러운 육가
라인형

샤워 트렌치

엣지 (스퀘어, 홀, 라인)

기계식 황동 트랩으로 배수시에만 트랩이 오픈되어
외부로부터 악취와 해충을 탁월하게 차단


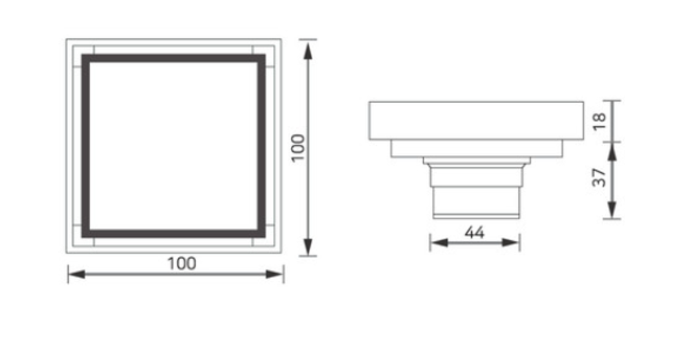
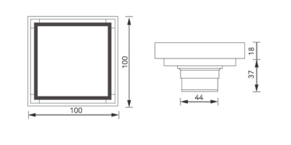
제품명 : FD1515 (W44/ W66)
재질 : SUS 304
사이즈 : 150 x 150
타입 : 정사각/ 타일삽입형(소)
구성품 : 상부커버, 거름망, 트랩, 본체프레임
용도 : 건물 및 욕실바닥 배수용
사이즈 : W44 (Φ44: 50, 65mm용) 신형트랩
배수관 : W66(Φ66: 75, 100mm용) 봉수트랩
▒ 트랩의 종류
SUS 304 봉수형
배수시 남은 잔수(봉수)로 해충 및 악취로부터 차단효과

BRASS 황동 기계식
흐르는 물의 압력으로 배수 시에만 개폐되어
해충, 악취 차단효과와 및 역류 방지

ABS 플라스틱 자석트랩
배수 시에만 개폐되고 배수 후에는 자동 닫힘으로
해충, 악취 차단 효과와 및 역류방지

ABS 슈퍼트랩
컴팩트한 사이즈로 다양한 배관에 무리 없이
사용가능하며 실리콘 마감으로
해충, 악취 차단효과와 및 역류방지


드레인에 대해서 알아보자! [ft. 드레인 상세도]
플로아드레인, 루프드레인 드레인이란 빗물, 오수 등을 배수하기 위해 바닥면이나 골의 배수구에 설치해서 배수관에 접속하는 부품 용도에 따라 발코니, 벽체형, pvc관용, 강관용 루프 등 그 종
heng000.com
욕실 조경, 플랜테리어에 대해서 알아보자!
욕실도 생화, 조화로 초록초록 그린테리어로... 일반적 욕실에는 조경설치가 힘든 건 사실이다. 특히 건식 말고 습식으로 사용하는 욕실에는 더더욱.. 그래서 조경을 설치하더라도 생화 말고 조
heng000.com
공동주택 욕실용 바닥 난방패널 히트인에 대해서 알아보자!
공동주택 욕실용 바닥 난방패널 히트인에 대해서 알아보자! 욕실난방패널 ADD 히트인 2004년 현대건설과 공동개발 환경부 녹색제품인증을 획득 *녹색기술인증 [저탄소 녹색성장 기본법] 제32조 녹
heng000.com
'interior' 카테고리의 다른 글
| 옥상 테라스, 베란다 공간 참고 이미지 자료! (0) | 2021.11.27 |
|---|---|
| 흡음 파티션 (Acoustic partition)& 흡음 천정재에 대해서... (0) | 2021.11.23 |
| 공동주택 욕실용 바닥 난방패널 히트인에 대해서 알아보자! (0) | 2021.11.22 |
| 우드 바닥재 수종별 규격 및 특징에 대해서... (1) | 2021.11.21 |
| 스틸 현관도어 제작(공정)과정에 대해서 살펴보자! (0) | 2021.11.14 |
| 친환경 금속 천장재 STEX에 대해서 알아보자! (0) | 2021.11.13 |
| 악취의 장소 별 원인에 대해서 살펴보자! (0) | 2021.11.08 |
| 카페트 공사에 대해서 알아보자! [ft.그리퍼공법, 액스민스터카펫] (0) | 2021.11.07 |
댓글