알루미늄 몰딩의 종류와 특징에 대해서..
728x90

알루미늄 몰딩 특징
· 이질재료 분리효과
· 간벽면의 크랙방지 효과

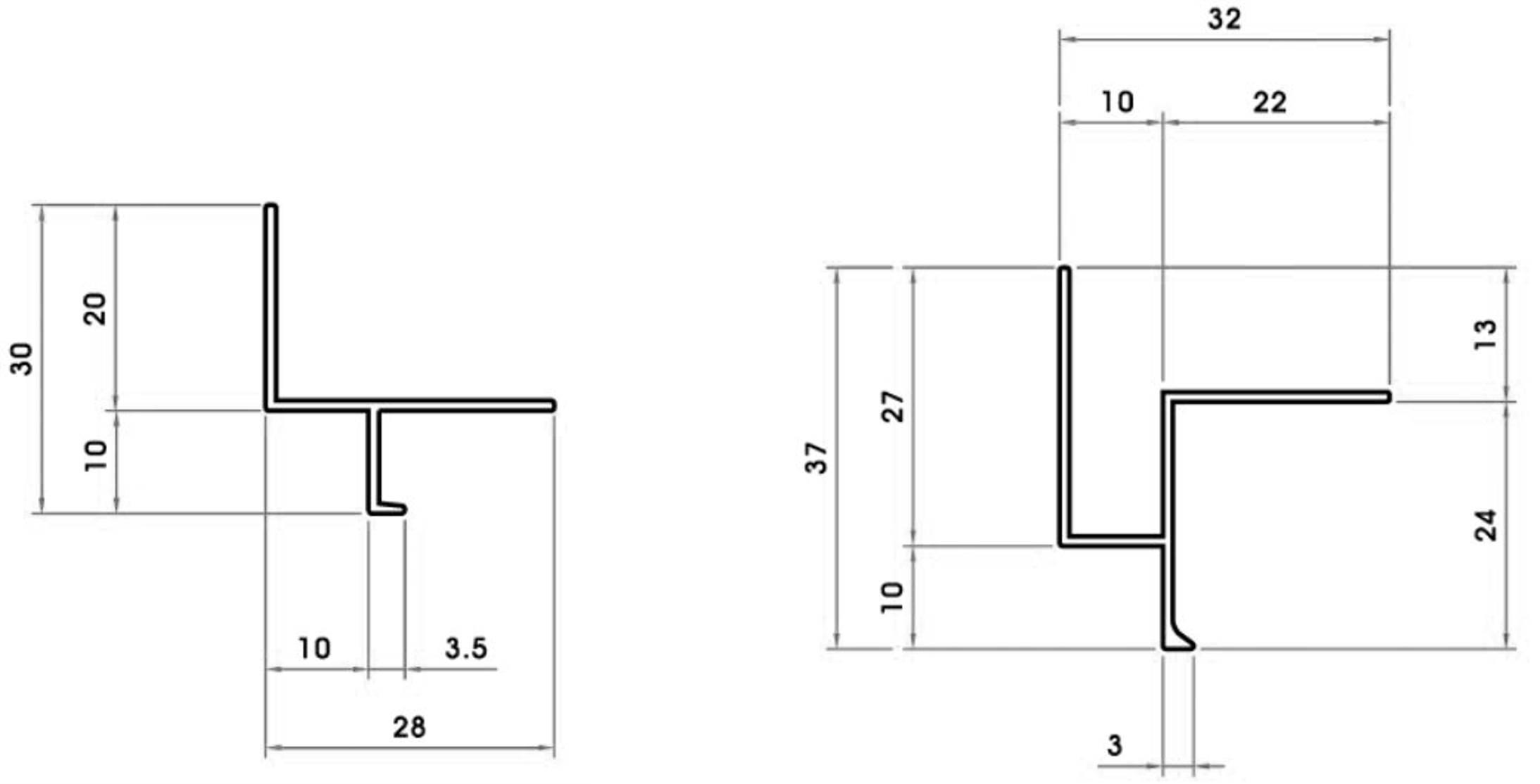
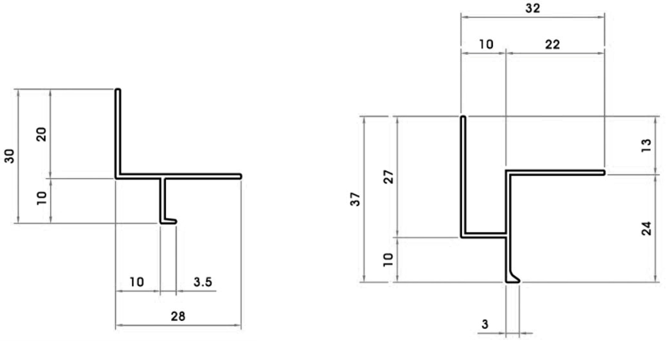
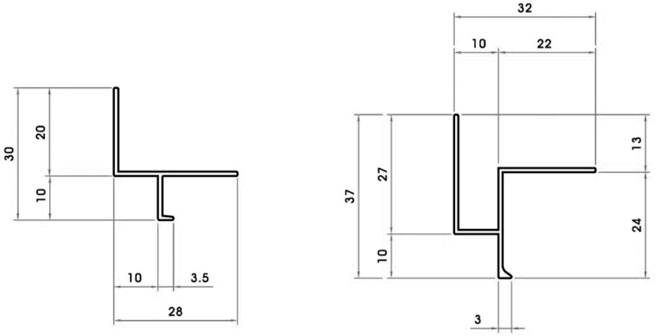
벽체 몰딩(1P)

천장 몰딩(1P/2P)

알루미늄 몰딩 적용 디테일
벽체


천장


북유럽감성 데코몰딩(웨인스코팅)으로 우아한 분위기 연출
몰딩의 종류에 대해서 알아보자! 예전에는 몰딩을 바닥 걸레받이에서부터 천정 몰딩까지 그야말로 집전체를 몰딩으로 도배를 했었다. 그것도 평몰딩이 아닌 갈매기 모양이나 크라운 모양처럼
heng000.com
픽쳐레일(액자걸이 와이어)에 대한 모든것!
우리 집을 나만의 미술관, 전시회장으로... 주거공간에 대한 관심이 많아지면서 셀프로 집을 꾸미는 셀프족들이 늘어나고 있다. 그중에서도 DP 쪽으로 관심이 많고 특히 집안 곳곳 액자로 포인트
heng000.com
빈티지 인테리어에 대해서... [Vintage Interior]
인더스트리얼 인테리어의 시초? 발판?! 빈티지의 사전적 의미는 낡고 오래된 것이다. 말 그대로 빈티지 인테리어는 오래된 느낌이 나게 마감재를 오래된 것처럼 인위적으로 만들거나 소품 등을
heng000.com
728x90
'interior' 카테고리의 다른 글
| 대리석 느낌의 데코라 글라스와 데코라 패널에 대해서... (0) | 2022.02.23 |
|---|---|
| 홈통공사 시방서 (0) | 2022.02.17 |
| 티사일런트 스터드 T.Silent-STUD에 관하여... (0) | 2022.02.16 |
| 리셉션 공간 & 안내 데스크 디자인 (0) | 2022.02.14 |
| 타일 시공 벽체 상세도 [ft. 개량압착공법] (0) | 2022.02.11 |
| 부자재 보강_ 차음용 보강재, V-브레이스(V-brace)! (0) | 2022.02.07 |
| 상업공간에서 많이 활용하는 모던한 수납, 디스플레이 선반 디자인 (0) | 2022.02.06 |
| 집 내부에 센스있는 티테이블 공간 만들기! (0) | 2022.01.28 |

댓글