내풍압용 SQ-BAR SYSTEM
내풍압용 SQ-BAR SYSTEM

건축물의 실내/ 외 천장에 적용되는 금속 마감재 중
가장 일반적으로 사용되는 AL TILE 시스템은
CLIP-IN 방식의 고정법으로 채택하여
외부 캐노피 및 필로티에 사용 시 탈락의 우려가 높고,
실제 바람에 의해 탈락이 발생하는 문제점이 있다.
내풍압 SQ-BAR SYSTEM은 SCREW 고정방식을
채택하여 견고함을 향상시켜 내풍압 성능을 확보하였으며,
15mm 또는 20mm Joint Line을 형성하여
미려한 외관을 확보할 수 있다.
재료
재질: KSD 3506 (용융 아연도강판)
KSD 3609 (건축용 강제받침대)
규격
· SQ-BAR : 30x 40x 0.45T 이상
· 내풍압 BOLT : 15mm (L=1,200이하) 또는 20mm(1,600 이하)
· HANGER & BEES : 32x 160x2.0T
· HANGER NUT :
· SQ-BAR JOINT : 0.6T
· SQ-BAR CLIP & BEES : 0.8T
· SQ-RUNNER : 32x 40x 0.6T 이상
· AL MAIN JOINER : 폭=15MM, L=3,690
· AL CROSS JOINER & CLIP : 폭=15MM, L=600
· 탈락방지용 MOLDING : 37x 18x 1.0T
· SUS 고정클립
특징
· 외부 캐노피/ 필로티, 건축물의 로비 등 점검이
어려운 높은 천장에 견고히 고정
· 내풍압용 구조틀로 풍압에 대한 최상의 성능 확보
· AL TILE과 동일한 생산방식으로 높은 생산성
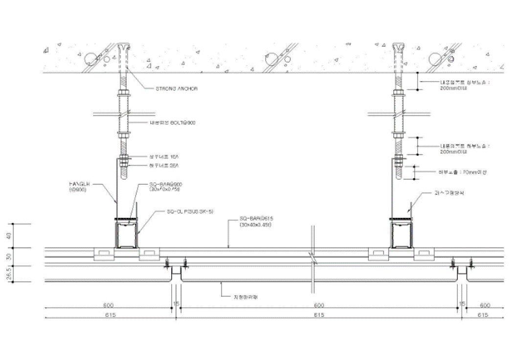
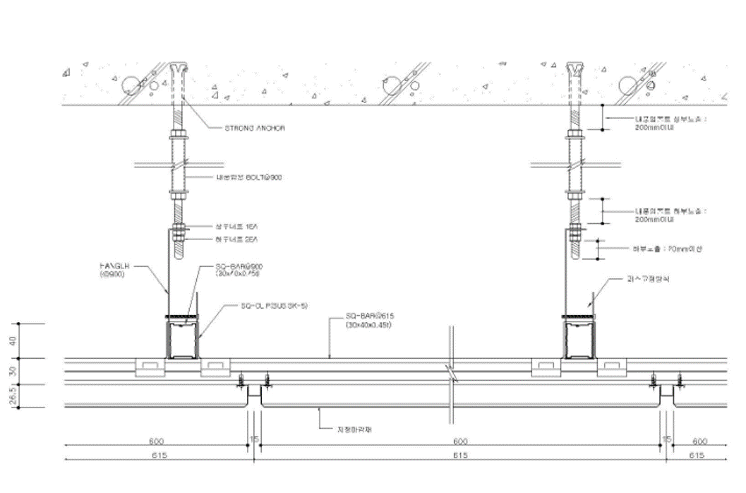
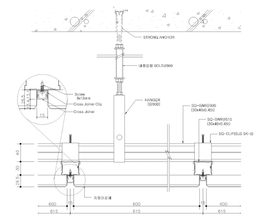
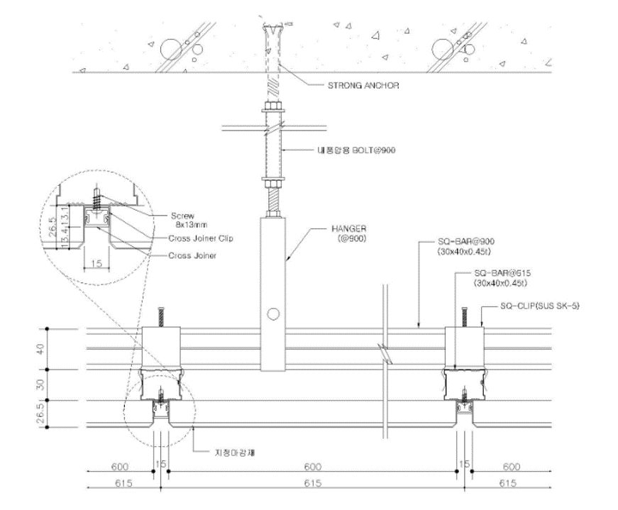
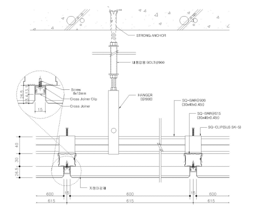
도면




시공정보
· 건물 중심선 설정
천장면의 정밀한 실측 후에 등라인, 디퓨져 위치 등
타공정을 CHECK 하여 중심선을 설정
· 탈락방지용 MODING 설치
- 도면에 의한 천장 높이 확인 후 LEVEL기
사용하여 먹메김 한다
- 먹메김을 따라 탈락방지용 MODING을
설치하고 피스 또는 타정핀을 300~600MM
간격으로 설치한다
- 마감재 설치 시 가장자리 패널은 현장에서
재단하여 MODING에
고정클립을 1장당 2개씩 눌러서
탈락을 방지한다
· 스트롱 앙카 작업
- 스트롱 앙카 작업 시: 중심선이 설정되면
스트롱 앙카(9mm) 고정부위를 슬라브 표면에
표시한 후 드릴로 뚫고 고정한다
- 스트롱 앙카 또는 인서트는 SQ-BAR(상부)의 설치 방향을
고려하여 설치 간격을 @900~ 1,200mm로 하는 것이
이상적이다
- 유의사항 : 앙카 또는 인서트 간의 간격과 직각에
유의하여야 하며 설치 후 인서트의 인발하중이
1개당 100 Kgf이상을 견뎌야 하며,
인서트를 독립적으로 슬라브에 매립 후
달대볼트를 설치하여야 한다
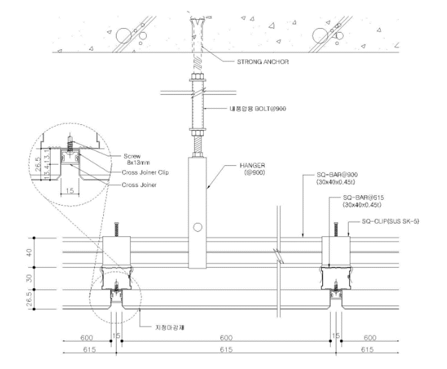
· 내풍압 볼트 설치
- 내풍압 볼트의 상부를 스트롱 앙카 또는 인서트에
고정시키고 볼트하부는 마감천장 높이를 고려하여
행어 및 너트로 고정한다
- 설비 닥트 및 기타 장애물이 있는 곳은 도면 사양에 따라
보강한 후 작업한다
- 내풍압 볼트의 상하부 노출간격은 200MM 이내여야 하며,
행어와 결합 후 하부너트는 2개를 부착하고 난 후
볼트의 노출길이는 20MM 이상으로 남겨,
흔들림에 의한 너트 풀림을 방지
· SQ-RUNNER 부착
- 먹줄에 따라 SQ -RUNNER를 부착하며
SQ -RUNNER는 1" 콘크리트 못을 사용하여
500~ 1,000mm 간격으로 고정한다
- SQ -RUNNER와 SQ -RUNNER 사이의 높이 및
간격이 이완되지 않도록 유의해야 한다
- CURTAIN BOX 등 시설물과 관련하여
사양에 따라 부착한다
- 유의사항: 도면, 또는 현장여건에 따라
SQ -RUNNERSM는 생략할 수 있다
· 등라인 설치
등라인 설정 사양에 따라 하되
전기 및 설비 관계자와 협의 요함
· SQ -BAR(상부) 설치
- 행어 세트와 SQ -BAR를 피스로 결착하여
고정시키며 @900~@1,200mm 이내로 설치한다
- SQ -BAR의 연결 부분은 SQ -BAR JOINT를
사용하여 연결한다
- SQ -BAR는 벽 또는 커튼박스 면에서 300mm 이상
떨어지지 않도록 설치한다
· SQ -BAR(하부) 설치
- 시공 중심선에 실을 띄운 후 SQ -BAR를
제품의 규격 및 등라인에 맞춰 SQ -BAR(상부)에
직각 방향으로 SQ -BAR CLIP을 사용하여
피스로 견고하게 설치한다.
이때 SQ -BAR CLIP의 재질은 SK-5의
특수강을 사용하여 상하부 SQ -BAR의
고정을 견고히 한다
SQ -BAR(하부)의 설치 간격은 도면에 따른다.
단, 도면에 명기되어 있지 않을 시는
450mm 이내로 설치한다
설치된 천장틀의 수평을 물 수평 또는
LEVEL기를 사용하여 정확히 맞춘다
· 지정 마감재 설치
· CURTAIN BOX 설치
- 사양에 따라 용도에 적합한 제품을 제작 설치
(별도 도장)
- 용접 작업이 병행되므로 안전하고 편한 자세로
작업할 수 있도록 작업대를 설치한다

경량철골 반자틀(M바, T바시스템)
경량철골 반자틀 반자의 설치 목적 - 미관적 구성 - 분진(먼지) 방지 - 음과 열 차단 - 배선, 배관 등의 차폐 M-바(bar) 시스템(system) ▷ 사용용도 - 조절 행거: 캐링 채널과 달 볼트의 연결 - 클립: M-
heng000.com
천장 시공용 경량철골 클립바 시스템의 부자재(부속품)
천장 시공용 경량철골 클립바 시스템의 부자재(부속품) 클립바 시스템 (clip-in System) · 보편적인 천장재 시공법으로 시공에 사용되는 부속품 · 기존의 경량철골로 설치된 타 천장재에서 클립바
heng000.com
POWER BAR (H.S-BAR) 파워바 시스템에 대해서...
POWER BAR (H.S-BAR) 파워바 시스템 건물의 천정 마감패널을 부착하여 지지시켜 주는 천정틀의 지지구조에 관한 것으로, 기존의 M-Bar 지지구조에서 발생한 단점들을 보완하면서 시공성, 경제성, 안정
heng000.com
'interior' 카테고리의 다른 글
| 전시, 홍보관 디스플레이 인테리어 디자인 [ft. DP장] (0) | 2022.03.28 |
|---|---|
| 스펀지 종류와 특징에 대해서.. [ft. 골드스펀지] (0) | 2022.03.21 |
| 세트앙카 & 아이너트 세트 규격 및 철물 명칭 (0) | 2022.03.19 |
| 깔끔하고 모던한 분위기의 응접실, 고객 대기공간 인테리어 (0) | 2022.03.18 |
| 건축허가에 따른 장애인 편의시설 세부기준 (0) | 2022.03.15 |
| 클라우드 판넬(Cloud Panel)에 대해서 알아보자![ft. 물결무늬 판넬] (0) | 2022.03.14 |
| LVT 타일 이란? [ft. Mohawk, Eigen Heim] (0) | 2022.03.11 |
| 부엌 싱크 제작가구 마감에 많이 쓰이는 PET, LPM, HPM에 대해서... (0) | 2022.03.07 |

댓글