풍속별 외부 천정 구조틀 설계 적용 기준

풍속별 외부 천정 구조틀 설계 적용 기준
· 외부 천정틀에 대한 구조 계산을 실시하여 검토 후 시공할 것
· 해안가 시공 시 부식에 강한 자재를 사용하여야 하므로
부자재를 ST'S 자재를 사용할 것
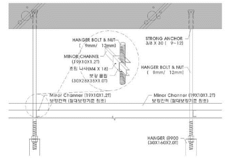
· 달대 길이가 보강 기준을 초과하는 경우 해당 기준
길이마다 수평으로 좌굴 보강을 할 것
· 단부는 반드시 탈락방지용 몰딩으로 시공할 것
· Hanger Bolt는 단부와의 간격이 150mm
(격자형 천정틀은 300mm)를 초과하지 말 것
· 원형 또는 이형의 단부는 몰딩에 맞추어 빈틈이
생기지 않도록 가공/ 시공한다
· 외부에 시공되는 천정 마감재는 모두
나사못을 사용하여 틀에 부착한다
· 외부에 시공되는 A/L 천정 마감재는 모두
나사못을 사용하여 틀에 부착(장당 5개소 이상) 한다.
| 구 분 | 25 m/s | 30 m/s | 35 m/s | 40 m/s | 45 m/s | |||||||
| SQ-bar | 각 파이프 |
SQ-bar | 각 파이프 |
SQ-bar | 각 파이프 |
SQ-bar | 각 파이프 |
SQ-bar | 각 파이프 |
|||
| 상 부 틀 | 30x40x 0.45t @900 |
25x25x 2t @1400 |
30x40x 0.45t @900 |
25x25x 2t @1400 |
40x50x 0.45t @900 |
25x25x 2t @1100/ 30x30x 2t @1400 |
40x50x 0.45t @900 |
30x30x 2t @1300 |
40x65x 0.45t @900 |
30x30x 2t @1100 |
||
| 하 부 틀 | Clip bar @600 |
25x25x 2t @600 |
40x30x 0.45t @600 |
25x25x 2t @600 |
50x40x 0.45t @600 |
25x25x 2t @600 |
50x40x 0.45t @600 |
30x30x 2t @600 |
65x40x 0.45t @600 |
30x30x 2t @600 |
||
| 달 대 |
수 평 간 격 | @900x 900 |
@1400x 900 |
@900x 900 |
@1400x 900 |
@900x 900 |
@1100x 900/ @1400x 900 |
@900x 900 |
@1300x 900 |
@900x 900 |
@1100x 900 |
|
| 수 직 보 강 |
Φ 9 | 450mm* 이하 | - | 450mm* 이하 | - | 450mm* 이하 | - | 450mm* 이하 | - | 450mm* 이하 | - | |
| Φ 12 | 700mm* 이하 | - | 700mm* 이하 | - | 700mm* 이하 | - | 700mm* 이하 | - | 700mm* 이하 | - | ||
| 각파이프 보강볼트 (Φ 9) 15*15* 1.6t |
880mm* 이하 | - | 880mm* 이하 | - | 880mm* 이하 | - | 880mm* 이하 | - | 880mm* 이하 | - | ||
| 각파이프 보강볼트 (Φ 12) 20*20* 1.6t |
1150mm* 이하 | - | 1150mm* 이하 | - | 1150mm* 이하 | - | 1150mm* 이하 | - | 1150mm* 이하 | - | ||
| 각파이프 20*20*1.6t |
- | 1500mm* 이하 | - | 1500mm* 이하 | - | 1500mm* 이하 | - | 1500mm* 이하 | - | 1500mm* 이하 | ||
| 각파이프 40*40*1.6t |
- | 3100mm* 이하 | - | 3100mm* 이하 | - | 3100mm* 이하 | - | 3100mm* 이하 | - | 3100mm* 이하 | ||
| 해 당 지 역 | 의정부, 남양주, 하남, 성남, 양평, 여주, 이천, 용인, 철원, 춘천, 홍천, 원주, 평창 | 서울, 인천, 김포, 구리, 수원, 안산, 화성, 시흥 등 | 삼척, 청주, 울진, 마산, 통영, 거제, 울산, 진도, 목포, 여수 | 속초, 강릉, 군산, 제주, 부산 | 포항, 울릉도, 독도 | |||||||
| * 구조 계산을 근거하여 SQ-Bar 대신 HS-Bar로 대체 가능함 | ||||||||||||



달대 보강 기준
| 구 분 | 달 대 길 이 | 달 대 보 강 간 격 | |
| 달 대 | Φ 9mm | 450mm 이하 | 450mm 이하 |
| Φ 12mm | 700mm 이하 | 700mm 이하 | |
| 내풍압볼트 15 x 15 x 1.6T |
880mm 이하 | 880mm 이하 | |
| 내풍압볼트 20 x 20 x 1.6T |
1,150mm 이하 | 1,150mm 이하 | |
| 각파이프 20 x 20 x 1.6T |
1,500mm 이하 | 1,500mm 이하 | |
| 각파이프 40 x 40 x 1.6T |
3,100mm 이하 | 3,100mm 이하 | |
천정재에 대해서... [석고텍스, 마이텍스, 마이톤]
천정재에 대해서... [석고텍스, 마이텍스, 마이톤] 천장재는 구성 성분에 따라 미네랄울계, 석고 시멘트계, 석고계, 합성수지계, 금속계 등으로 나뉘는데, 이 중 미네랄울계 흡음 천장재는 순수
heng000.com
경량철골 반자틀(M바, T바시스템)
경량철골 반자틀 반자의 설치 목적 - 미관적 구성 - 분진(먼지) 방지 - 음과 열 차단 - 배선, 배관 등의 차폐 M-바(bar) 시스템(system) ▷ 사용용도 - 조절 행거: 캐링 채널과 달 볼트의 연결 - 클립: M-
heng000.com
경량철골 vs H-형강구조
경량철골 vs H-형강 구조 경량철골은 경량 철골 구조 시스템의 최첨단, 최경량 조립식 구조물로 자동화된 ROLL FORMING 생산라인에서 생산되는 주자재와 규격화된 각종 브라켓 및 부자재로 현장에서
heng000.com

'interior' 카테고리의 다른 글
| 공법 표준화 (수장 공사)_ 건식 벽체 시공 기준 (0) | 2023.05.29 |
|---|---|
| 금속제 창호에 대해서... [강제, 알루미늄제, 스테인리스 창호] (0) | 2023.05.27 |
| 플라스틱 제품 종류에 대해서 알아보자! (0) | 2023.05.25 |
| 카펫타일 공사 일반시방서 자료 (0) | 2023.05.22 |
| 실란트 공사 공법 표준화 (0) | 2023.05.18 |
| 자동문 특기 시방서 (0) | 2023.05.15 |
| 투썸 플레이스 쌍령동 DT점 외부 마감재? [ft. 럭스틸 라인패널] (0) | 2023.05.14 |
| LVT 바닥재 시장의 리딩기업 녹수에 대해서... (0) | 2023.05.13 |
댓글