밸런스 도어, 에르곤 도어, 스윙 도어? [ft. 도어 상세도]

밸런스도어란
회전반경을 최소화하여 공간활용도를 높인 도어로
개구부가 좁은 공간에서도 도어를 180도
개폐하여 우수한 개방감을 연출할 수 있다.
일반도어와 달리 내· 외부 풍· 기압 차에 의한 연돌현상에
대응할 수 있는 적합한 기밀성 도어로써,
개 폐에 있어 사용이 용이하며,
건물 내부의 냉난방 시 에너지 세이브에 도움을
줄 수 있으며, 특히 주출입구, 엘리베이터 도어의
문 열림 현상 등 건물 출입구 등에 최적화되어 있는
기능성 DOOR이다.
특징
· 높은 공간 활용도 (180도 양방향 개폐가능)
· 편리한 사용성
· 모던한 디자인
· 안전성 확보
· 에너지 절감효과
설치장소
· 빌딩 주/ 부출입구
· 지하 연결통로 및 엘리베이터 연결통로
· 초고층 빌딩
· 대형도어 (폭 1400, 높이 5500적용가능,
하중 300kg)
· 아파트 중문

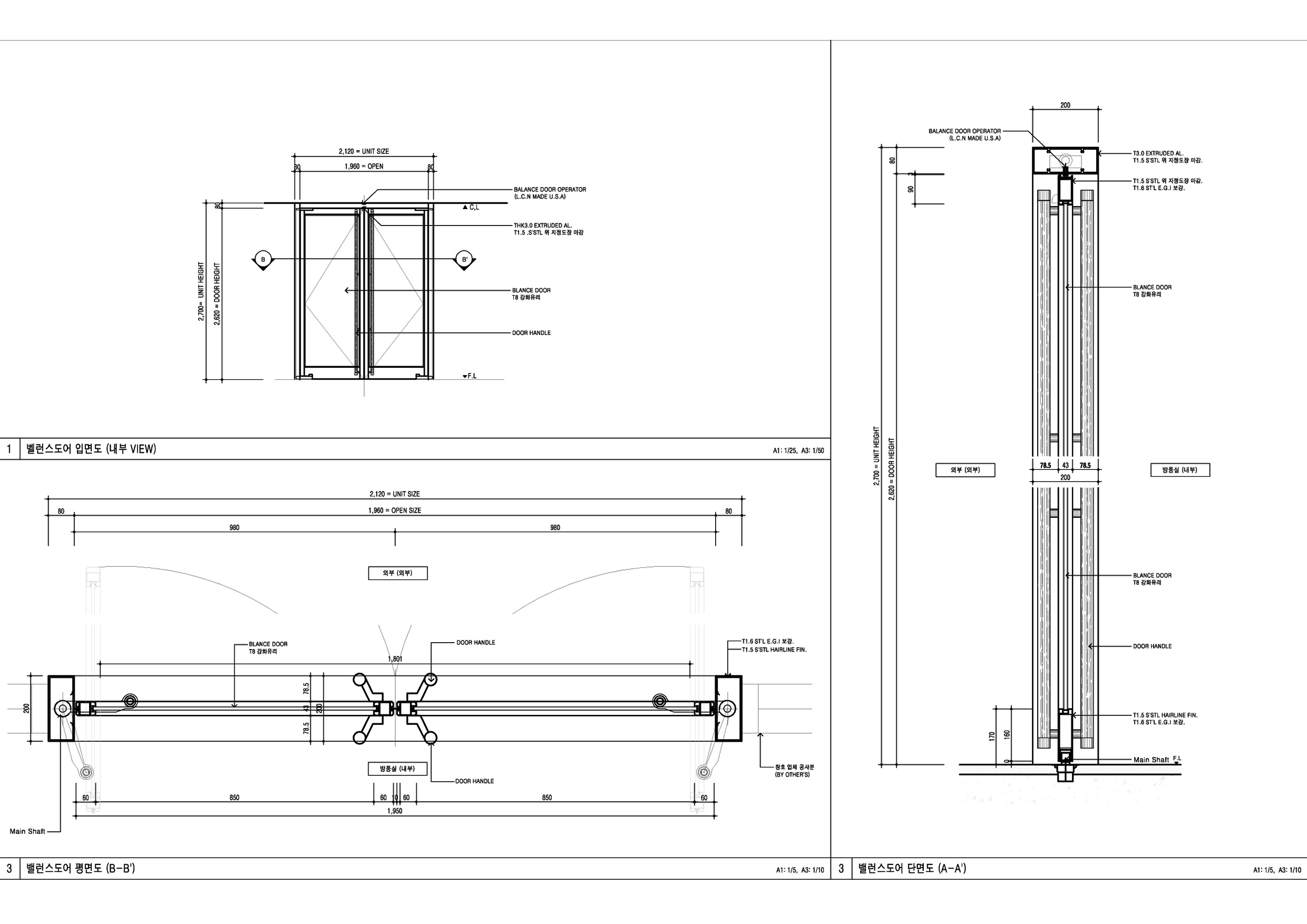
밸런스도어 상세도


스태킹 도어, 오버헤드 도어, 풀드업 도어?
스태킹 도어, 오버헤드 도어, 풀드업 도어? 스태킹 도어 ▒ 특징 도어 개폐 시 수직상승하여 셔터박스 상부에서 도어 판넬이 수납식으로 겹쳐지는 방식으로 기존 오버헤드 대형 도어의 장점을
heng000.com
강화도어의 종류
가네모도어, 가마찌도어, 강화도어, 방화도어, 방음도어 유리힌지(가네모) 도어란? - 보통 일본 건축용어 '가네모 도어'라고 현장에서 불리는 문으로 유리문의 상, 하 코너 부분에 힌지로 고정되
heng000.com
스틸 현관도어 제작(공정)과정에 대해서 살펴보자!
스틸 현관도어 제작(공정) 과정에 대해서 살펴보자! ▒ 스틸도어 제작과정 ▒ 제작공정 ▒ 시공품질기준 · 재료 - 모든 강판은 냉간압연 아연도 강판을 사용 - 문틀용 철판은 1.6T, 문짝용 철판은
heng000.com
'interior' 카테고리의 다른 글
| 콘크리트 줄눈 시방서 (0) | 2023.04.24 |
|---|---|
| 금속 커튼월(시티월) 시방서 (0) | 2023.04.18 |
| 어린이집, 요양원, 바닥마감재 EQ FLOOR (이큐플로어) 에 대해서... (0) | 2023.04.17 |
| 라인조명 레이스웨이에 대해서 알아보자! (0) | 2023.04.14 |
| 연질형 복합 방수 공법에 대해서 알아보자![Acrofix Pro System] (1) | 2023.04.11 |
| 스태킹 도어, 오버헤드 도어, 풀드업 도어? (0) | 2023.04.10 |
| 건식 석재공사 시방서 (0) | 2023.04.09 |
| 석고보드(KCC) 시방서 (0) | 2023.03.30 |

댓글